COMMERCIAL
SHUME
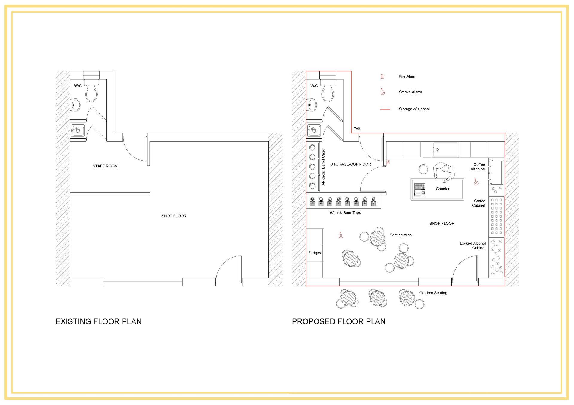
As another local business we were thrilled to help Shume in processing planning applications for two of their shops in the bustling St Neots town centre.
Garage
When companies need to expand, we are happy to help overcome the constraints and hurdles in the planning process. We helped overcome concerns with planning and parking to ultimately gain approval for a new 250sqm unit on the client’s existing site.





